
El Dockwise Vanguard (fuente: gCaptain)
El Dockwise Vanguard es, con sus 110.000 toneladas de capacidad carga, el buque heavy-lift más grande del mundo. El buque, construido en los astilleros coreanos Hyundai Heavy Industries durante 2012 y entregado a su operador Dockwise en febrero de 2013, está preparado para el transporte de grandes cargas o para ser utilizado como dique flotante en tareas de mantenimiento de otros buques.
La compañía holandesa Dockwise, que forma parte del conglomerado marino Royal Boskalis Westminster, cuenta con una flota de 19 buques heavy-lift, entre ellos el Blue Marlin, el más grande del mundo en su tiempo. Pero hasta el más grande a veces se queda pequeño. La necesidad de la explotación de los recursos offshore a zonas cada vez más alejadas de la costa hizo necesario el transporte de instalaciones construidas en tierra cada vez más grandes, abaratando el coste de trasladar los componentes por separado y ensamblarlos en el lugar de destino. Por ello, la junta directiva de Dockwise aprobó la construcción de un nuevo súper barco en noviembre de 2010.
El diseño del nuevo buque debía basarse en las premisas de la optimización del reforzado de la cubierta de carga, llevar al máximo la capacidad de carga y evitar la limitación de eslora de los buques anteriores. Para ello se encargó el diseño a la ingeniería finlandesa Delta Marine, que realizó el trabajo junto al DNV y la división offshore de la Hyundai Heavy Industries, el astillero contratado para la construcción del barco en febrero de 2011. Los 225 millones de euros necesarios para la construcción del buque fueron financiados por los bancos ABN AMRO Bank, Deutsche Bank, Rabobank y The Royal Bank of Scotland. La construcción del buque se llevó a cabo desde septiembre de 2011 hasta noviembre del 2012.

El Dockwise Vanguard durante su construcción (fuente: Offshore Kinematics Inc.)
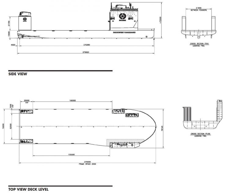
Las formas del Dockwise Vanguard son sencillas pero bastante llamativas. El casco del buque es una gran cubierta de 275 metros de eslora por 70 metros de manga, sin proa, y con cuatro estructuras verticales en sus esquinas. Los 19.250 metros cuadrados de superficie de la cubierta son un 70% más que los del Blue Marlin. La ausencia de la habitual superestructura a proa permite la carga de elementos más largos que la eslora del buque. El puente, los espacios para la tripulación y los equipos de máquinas se encuentran en la estructura vertical situada a proa en estribor.
Cuando se inundan los tanques de lastre del buque, su cubierta se sumerge 16 metros por debajo de la superficie del mar. Gracias a ello el buque puede cargar otros buques y, al vaciar los tanques de lastre, sacarlos del agua. La capacidad de carga del Dockwise Vanguard alcanza las 110.000 toneladas, un 50 por ciento más que la del Blue Marlin. Esto permite el transporte sobre él de grandes unidades que hasta la aparición del buque sólo podían trasladarse remolcados o desmontados en partes más pequeñas, reduciendo el tiempo y el coste del transporte. El Vanguard también puede funcionar como dique flotante, desplazándose al lugar en donde se encuentra la unidad offshore y sacándola fuera del agua para realizar trabajos de inspección, mantenimiento o reparación, sin que la unidad offshore interrumpa su producción.

El Dockwise Vanguard transportando una unidad off-shore (fuente: Autoblog)
La cámara de máquinas del buque está equipada con cuatro generadores diésel Wärtsilä que suman 26.000 kW de potencia, con la que alimentan a todos los equipos del barco, incluyendo las dos hélices de paso controlable en tobera de 5 metros de diámetro que empujan el Vanguard. La propulsión permite una velocidad de entre 11 y 13 nudos con el buque cargado, y 14 nudos de velocidad máxima con el buque sin carga. El buque cuenta además con un propulsor de proa de 2.650 kW y dos propulsores azimutales retráctiles de 3.000 kW cada uno para ayudar en la maniobra del mismo.
En febrero de 2013, nada más abandonar el astillero de Hyundai en donde fue construido, el Dockwise Vanguard se dirigió al astillero también coreano de Samsung para recoger una unidad de producción offshore semisumergible de 53.000 toneladas de peso destinada al proyecto Jack/St. Malo de Chevron en el Golfo de México. Durante el verano de ese mismo año, el Vanguard fue utilizado como dique flotante por primera vez en las tareas de mantenimiento de la plataforma de perforación offshore Noble Paul Romano, en la costa de Malta, ya que ninguno de los diques tanto flotantes como secos de los alrededores no tenían capacidad para alojar la plataforma.

El Dockwise Vanguard cargado con la unidad offf-shore Goliath (fuente: Heavy Lift News)
Características generales.
Desplazamiento: 91.238 toneladas
Eslora: 275 metros
Manga: 78,75 metros
Puntal: 15,5 metros
Calado: 11 metros navegando; 31,5 metros sumergida
Potencia instalada: 27.000 kW
Velocidad: 14 nudos descargada; 11 a 13 nudos cargada
Tripulación: 40 personas

Fuente: Heavy Lift News
Para saber más:
– Dockwise Vanguard Heavy Transport Vessel, Netherlands, en Ship-Technology.com
– MegaMachines: Dockwise Vanguard, World’s Largest Heavy Lift Ship, en gCaptain
– Game changer at top end of the heavy load market, en The Motorship
– Página web de la Hyundai Heavy Industries.
Un artículo de Juan A Oliveira. Si te ha gustado la entrada, puedes seguir el blog por Twitter, Facebook o correo electrónico (búscalo más abajo), para recibir las actualizaciones semanales.










Reblogueó esto en Mar Equinoccialy comentado:
Buques semisumergibles heavy-lift. El Dockwise Vanguard.
Me gustaMe gusta
Pingback: La mayor plataforma SPAR del mundo navega hacia Noruega. | VA DE BARCOS
Pingback: 7 buques semisumergibles para grandes cargas. | VA DE BARCOS
Pingback: BOKA Vanguard, el barco semisumergible de carga más grande del mundo: una mole para mover 110.000 toneladas
Pingback: BOKA Vanguard, el barco semisumergible de carga más grande del mundo: una mole para mover 110.000 toneladas - Radio Onda Digital
Pingback: BOKA Vanguard, el barco semisumergible de carga más grande del mundo: una mole para mover 110.000 toneladas - Nicolás Jiménez Silva
Pingback: BOKA Vanguard, el barco semisumergible de carga más grande del mundo: una mole para mover 110.000 toneladas -
Pingback: BOKA Vanguard, el barco semisumergible de carga más grande del mundo: una mole para mover 110.000 toneladas « SerNoticias.com.mx
Pingback: una mole para mover 110.000 toneladas - One TV San Juan